Τριάρι διαμέρισμα στην Παλιά Πόλη

Αγορά
Τριάρι διαμέρισμα στην Παλιά Πόλη
Βόρεια Κρήτη, Ρέθυμνο, Παλιά Πόλη
€420000
Code: :291784
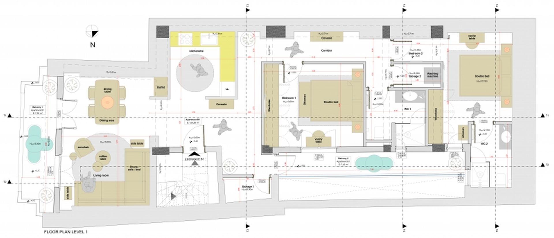
  • Τετραγωνικά 120m 2
  • Δωμάτια 2
  • Μπάνια 2
  • Αποθήκη Ναι
  • ΠΕΑ A+

Περιγραφή

Το  νέο αποκλειστικό project προς πώληση από το γραφείο RE/MAX Creative και την ομάδα GKPropertyPartners, με την ονομασία FortezzaProjectOldTown, αποτελείται από τέσσερα διαμερίσματα σε ένα από τα πιο προνομιακά σημεία της παλιάς πόλης του Ρεθύμνου. Το project βρίσκεται μόλις λίγα μέτρα από το εμβληματικό φρούριο της Φορτέτζας και την παραλία της πόλης.

Η παλιά πόλη του Ρεθύμνου αποτελεί πόλο έλξης χιλιάδων τουριστών από όλο τον κόσμο. Οι παραδοσιακές ταβέρνες, τα νυχτερινά μαγαζιά και τα ιστορικά μνημεία είναι μόνο μερικές από τις ομορφιές που προσφέρει, τόσο την ημέρα όσο και τη νύχτα.

Στο τριώροφο αυτό κτίριο, διατίθεται προς πώληση μια  κατοικία 120 τ.μ.,1ου ορόφου η οποία περιλαμβάνει ενιαίο χώρο καθιστικού και κουζίνας, το μπάνιο μια εσωτερική αποθήκη καθώς και δυο άνετα  υπνοδωμάτια το ένα με το δικό του μπάνιο.  Τα εξωτερικά ξύλινα κουφώματα συνάδουν με την παραδοσιακή αρχιτεκτονική της παλιάς πόλης, προσφέροντας μια ιδιαίτερη αισθητική πινελιά.

Η θέρμανση του διαμερίσματος εξασφαλίζεται μέσω σύγχρονων κλιματιστικών τελευταίας τεχνολογίας, που παρέχουν οικονομική κατανάλωση ρεύματος.

Το συγκεκριμένο διαμέρισμα αποτελεί μια εξαιρετική ευκαιρία, είτε για  ιδιοκατοίκηση είτε για επενδυτικούς σκοπούς, προσφέροντας τη δυνατότητα ενός αξιόλογου εισοδήματος στην πιο δημοφιλή περιοχή του Ρεθύμνου.

 

Gallery
Youtube
Τοποθεσία Ακινήτου

Φόρμα Εκδήλωσης Ενδιαφέροντος

+30 28310 30300
Σας προτείνουμε

RΕ/ΜΑΧ CreativeΓίνε κι εσύ μέλος του μεγαλύτερου κτηματομεσιτικού δικτύου στον κόσμο!

Τα νούμερα μιλάνε από μόνα τους!

Στην RE/MAX Creative οι επιτυχίες δεν τελειώνουν! Και το 2025 ήταν μια χρονιά με σταθερά αυξητική πορεία!

  • Τα γραφεία μας στο Top 6 των καλύτερων γραφείων, ανάμεσα σε περισσότερα από 86 γραφεία ανά την Ελλάδα
    •10 βραβεία συνολικά για τους συνεργάτες μας για το 2025. Τα ονόματα τους βρέθηκαν και πάλι στη λίστα με τους Top Agents της εταιρείας, ανάμεσα σε 1300 συμβούλους ακινήτων Πανελλαδικά. Συγκεκριμένα:

TEAM

  • Μια ομάδα του γραφείου μας, απέσπασε το Chairman’s Award- η μοναδική που το πέτυχε αυτό στην Κρήτη
  • Μια ομάδα στη λίστα των Executive βραβείων.

INDIVIDUAL

  • 1 συνεργάτης μας κατέκτησε το Platinum Club Award,
  • 3 συνεργάτες μας κατέκτησαν το 100% Club Award,
  • 3 συνεργάτες μας κατέκτησαν το Executive Club Award.
  • 1 συνεργάτης κατέκτησε το 1ο βραβείο για τις περισσότερες πράξεις και μάλιστα για 4η συνεχόμενη χρονιά

Executive Club Award: Από 33.990€

100% Club Award: Από 67.980€

Platinum Club Award: Από 169.952€

Chairman’s Award: Από 339.904€

 

Επικοινωνία