Το νέο αποκλειστικό project προς πώληση από το γραφείο RE/MAX Creative και την ομάδα GK Property Partners, με την ονομασία Fortezza Project Old Town, αποτελείται από τέσσερα διαμερίσματα σε ένα από τα πιο προνομιακά σημεία της παλιάς πόλης του Ρεθύμνου. Το project βρίσκεται μόλις λίγα μέτρα από το εμβληματικό φρούριο της Φορτέτζας και την παραλία της πόλης.
Η παλιά πόλη του Ρεθύμνου αποτελεί πόλο έλξης χιλιάδων τουριστών από όλο τον κόσμο. Οι παραδοσιακές ταβέρνες, τα νυχτερινά μαγαζιά και τα ιστορικά μνημεία είναι μόνο μερικές από τις ομορφιές που προσφέρει, τόσο την ημέρα όσο και τη νύχτα.
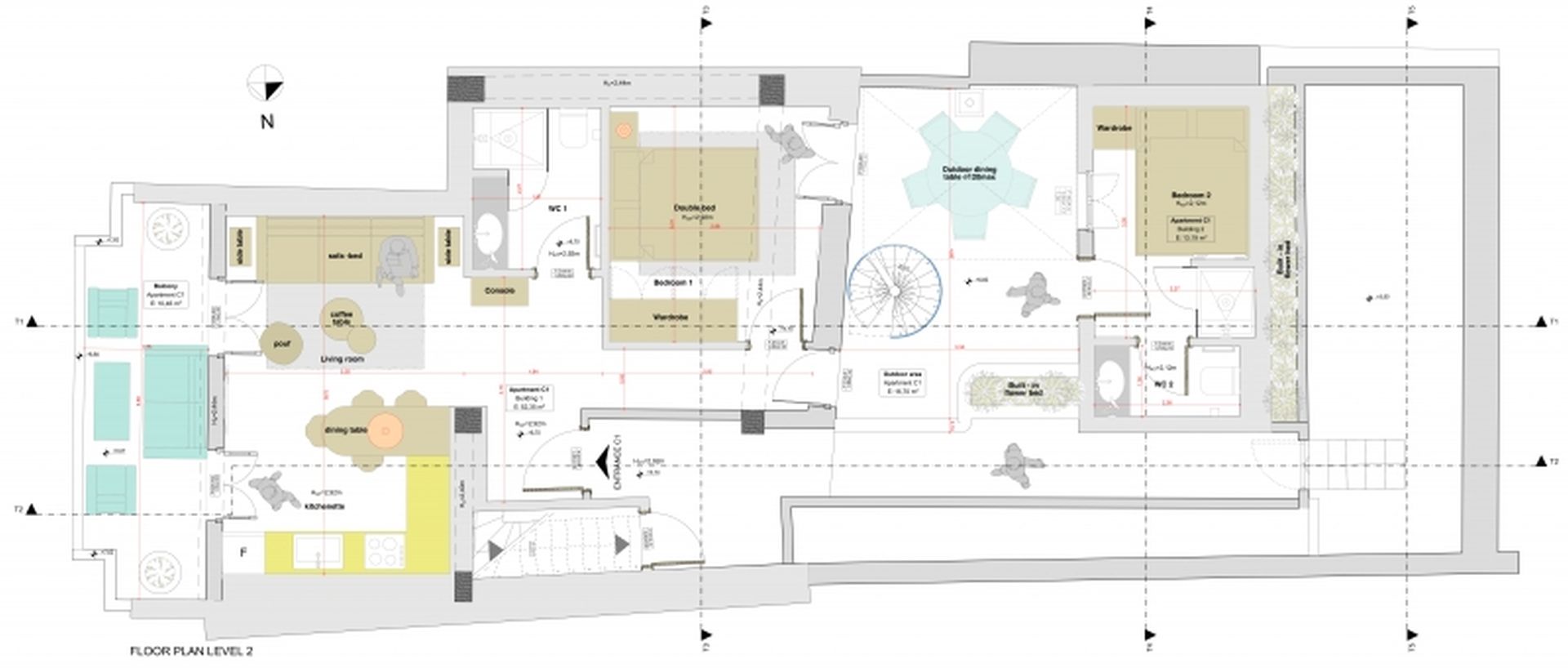
Στο τριώροφο αυτό κτίριο, διατίθεται προς πώληση μια κατοικία 82 τ.μ.,2ου ορόφου με αποκλειστική χρήση της ταράτσας 64 τ.μ οποία περιλαμβάνει ενιαίο χώρο καθιστικού και κουζίνας, το μπάνιο και δυο άνετα υπνοδωμάτια το ένα με το δικό του μπάνιο. Τα εξωτερικά ξύλινα κουφώματα συνάδουν με την παραδοσιακή αρχιτεκτονική της παλιάς πόλης, προσφέροντας μια ιδιαίτερη αισθητική πινελιά.
Η κατοικία έχει ένα μπαλκόνι καθώς και το αίθριο μεταξύ των υπνοδωματίων.
Η πρόσβαση στην ταράτσα είναι από εξωτερική σκάλα και στον αποκλειστικό χώρο των 65 τ.μ μπορεί να διαμορφωθεί σε ένα υπέροχο roofgardenμε σαλόνι jacuzziμε θέα το εμβληματικό φρούριο της Φορτέτζας.
Η θέρμανση του διαμερίσματος εξασφαλίζεται μέσω σύγχρονων κλιματιστικών τελευταίας τεχνολογίας, που παρέχουν οικονομική κατανάλωση ρεύματος.
Το συγκεκριμένο διαμέρισμα αποτελεί μια εξαιρετική ευκαιρία, είτε για ιδιοκατοίκηση είτε για επενδυτικούς σκοπούς, προσφέροντας τη δυνατότητα ενός αξιόλογου εισοδήματος στην πιο δημοφιλή περιοχή του Ρεθύμνου.