Μονοκατοικία στη Παλιά Πόλη

Αγορά
Μονοκατοικία στη Παλιά Πόλη
Βόρεια Κρήτη, Ρέθυμνο, Παλιά Πόλη
€950000
Code: :92096
  • Τετραγωνικά 218m 2
  • Δωμάτια 4
  • Μπάνια 4
  • Μπαλκόνια Ναι
  • Θέα Ναι
  • Παρκινγκ Ναι
  • ΠΕΑ A

Περιγραφή

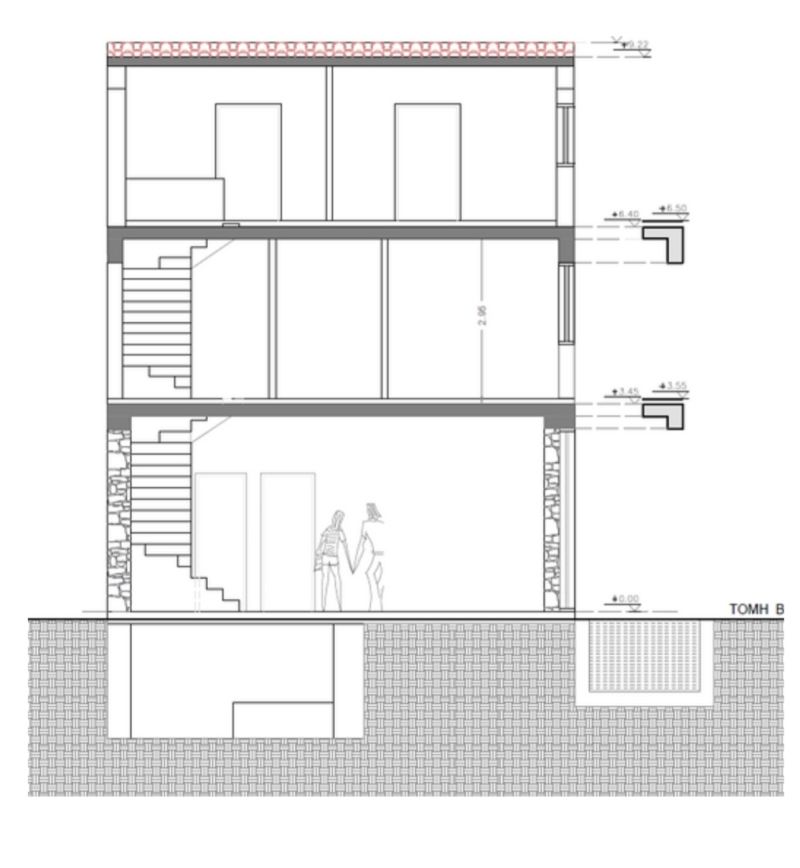
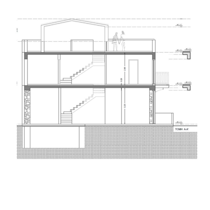
Πωλείται νεόδμητη μονοκατοικία, συνολικής επιφάνειας 218 τ.μ. στην Παλιά Πόλη Ρεθύμνου και σε οικόπεδο με έκταση 153 τ.μ.
Το ακίνητο εκτείνεται σε τρία επίπεδα, ισόγειο 91 τ.μ., πρώτος όροφος 85 τ.μ. και σοφίτα 42 τ.μ. Διαθέτει επίσης και έναν μικρό χώρο υπογείου 23 τ.μ. που μπορεί να χρησιμοποιηθεί και ως αποθηκευτικός χώρος. Η κατασκευή αναμένεται να ολοκληρωθεί τον Μάιο του 2026 και θα πραγματοποιηθεί με σύγχρονες προδιαγραφές και υλικά υψηλής ποιότητας, εξασφαλίζοντας υψηλή ενεργειακή απόδοση.
Η κατοικία θα περιλαμβάνει τέσσερα υπνοδωμάτια, τρία ευρύχωρα καθιστικά (με δυνατότητα χρήσης του ενός ως επιπλέον υπνοδωματίου), τέσσερα μπάνια, δύο WC και μια πλήρως εξοπλισμένη, λειτουργική κουζίνα. Οι εξωτερικοί χώροι περιλαμβάνουν μία μικρή αυλή στο ισόγειο, τρία μπαλκόνια στον πρώτο όροφο και μία μεγάλη βεράντα στο υψηλότερο επίπεδο με ανοιχτή θέα προς την πόλη και το παραδοσιακό τοπίο.

Το ακίνητο θα διαθέτει εξωτερική θερμομόνωση επενδυμένη με πέτρα, προσφέροντας τόσο υψηλή ενεργειακή απόδοση όσο και αισθητική που εναρμονίζεται με το ιστορικό περιβάλλον. Η κατοικία θα παραδοθεί πλήρως επιπλωμένη και εξοπλισμένη με σύγχρονες ηλεκτρικές συσκευές, μοντέρνα έπιπλα, κλιματιστικά και αντλία θερμότητας.
Πρόκειται για ιδανική επιλογή είτε ως μόνιμη κατοικία, χάρη στην εξαιρετική της τοποθεσία, είτε ως επενδυτική πρόταση, καθώς βρίσκεται σε ένα από τα πλέον τουριστικά σημεία του Ρεθύμνου.

Gallery
Τοποθεσία Ακινήτου

Φόρμα Εκδήλωσης Ενδιαφέροντος

+30 28310 30300
Σας προτείνουμε

RΕ/ΜΑΧ CreativeΓίνε κι εσύ μέλος του μεγαλύτερου κτηματομεσιτικού δικτύου στον κόσμο!

Τα νούμερα μιλάνε από μόνα τους!

Στην RE/MAX Creative οι επιτυχίες δεν τελειώνουν! Και το 2025 ήταν μια χρονιά με σταθερά αυξητική πορεία!

  • Τα γραφεία μας στο Top 6 των καλύτερων γραφείων, ανάμεσα σε περισσότερα από 86 γραφεία ανά την Ελλάδα
    •10 βραβεία συνολικά για τους συνεργάτες μας για το 2025. Τα ονόματα τους βρέθηκαν και πάλι στη λίστα με τους Top Agents της εταιρείας, ανάμεσα σε 1300 συμβούλους ακινήτων Πανελλαδικά. Συγκεκριμένα:

TEAM

  • Μια ομάδα του γραφείου μας, απέσπασε το Chairman’s Award- η μοναδική που το πέτυχε αυτό στην Κρήτη
  • Μια ομάδα στη λίστα των Executive βραβείων.

INDIVIDUAL

  • 1 συνεργάτης μας κατέκτησε το Platinum Club Award,
  • 3 συνεργάτες μας κατέκτησαν το 100% Club Award,
  • 3 συνεργάτες μας κατέκτησαν το Executive Club Award.
  • 1 συνεργάτης κατέκτησε το 1ο βραβείο για τις περισσότερες πράξεις και μάλιστα για 4η συνεχόμενη χρονιά

Executive Club Award: Από 33.990€

100% Club Award: Από 67.980€

Platinum Club Award: Από 169.952€

Chairman’s Award: Από 339.904€

 

Επικοινωνία